SANIPRO

Sanipro е помпена станция за отпадни води с вграден режещ механизъм. Sanipro е оборудвана с мощен двигател, който може да изпомпва отпадните води от мокро помещение включващо тоалетна чиния, писоар, биде, мивка и душ. Със системите Sanipro може да инсталирате санитарни помещения дори на места, където предварително сте считали това за невъзможно, както и да пренебрегнете досегашните ограничения като големината на тръбната разводка.

Специалната конструкция на системата позволява бързо и безшумно изпомпване на отпадните води от тоалетна чиния, душ кабината или мивката, през канализационна тръба с диаметър 22 mm до отдалечен канал или септична яма.

Системата SANIPRO е снабдена с филтър с активен въглен на вентилационния отвор, който предотвратява наличието на неприятни миризми. Икономична, лесна за монтиране, помпата може да работи с всякакви санитарни препарати (EN 33 или EN37). При необходимост е възможно да бъде скрита зад леснодостъпен демонтируем панел. Благодарение на помпените станции на SFA Group, можете да инсталирате санитарни помещения дори на места, където предварително сте считали това за невъзможно.

Системите SANIPRO са произведени във Франция. Производителят, SFA Group е лидер в производството на помпи за санитарни възли с над 50 годишен опит.

 

SANIPRO Е ПОДХОДЯЩА ЗА ИЗПОМПВАНЕ НА ОТПАДНИ ВОДИ ОТ:

• Тоалетна чиния

• Умивалник

• Душ

• Душ кабина

• Хидромасажна система

• Биде

• Може да бъде оборудвана със Sanialarm.

 

Забележка: Системите с режещ механизъм на SFA Group не се нуждаят от поддръжка. Попадането на тампони, дамски превръзки, презервативи, мокри кърпички, а така също на влакнести и твърди предмети може да повреди системата.

Модели и цени

Модел Напреж. (V) Мощност (kW) Макс. дебит (m3/h) Макс. напор (m) Цена*
SANIPRO  220  0.4  5.7  534.00 € / 1044.41 лв. 

* цените са с ДДС.

Спецификация

Обороти на въртене на електродвигателя (r/min): 2800
Електрозахранване (V): 220-240 / 50 Hz
Мощност на електродвигателя (W): 400
Диаметър на изходящата тръба (mm): 22 / 28 / 32
Вертикално изпомпване (m): 5
Хоризонтално изпомпване (m): 100
Наклон на хоризонталните връзки (%): 3
Максимална работна температура (°C): 35
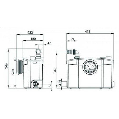
Размери (mm): 413 x 180x 263
Европейски стандарт: EN12050-3

Производител

Запитване

Ние знаем от коя страница изпращате запитването.
Вашите данни са необходими, за да можем да се свържем и отговорим на въпроса Ви.